Reserviert Einfamilienhaus - Kauf - Berumbur

***Reserviert*** Gepflegtes Einfamilienhaus mit Garage, Hebebühne und vielen Extras

369.900 €
Berumbur
Objektart
Haus
Objekttyp
Einfamilienhaus
Vermarktungsart
Kauf
PLZ
26524
Ort
Berumbur
Zimmer
4
Schlafzimmer
2
Badezimmer
2
Wohnfläche
141 m²
Grundstück
788 m²
Etagenzahl
1
vermarktungsstatus
Reserviert

Beschreibung:

Einziehen, Wohlfühlen und Genießen!

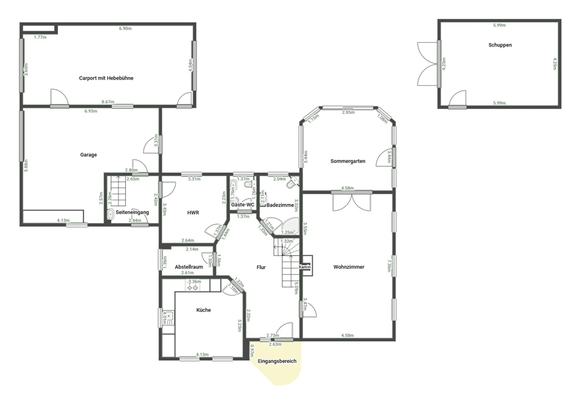
Dieses bezaubernde Einfamilienhaus verbindet hohen Wohnkomfort mit einer ruhigen, familienfreundlichen Lage. Auf etwa 141 m² Wohnfläche und verteilt auf 4 Zimmer, überzeugt es durch lichtdurchflutete Räume und eine hochwertige Ausstattung.

Das großzügige Grundstück mit Garage, Carport (inkl. Hebebühne) und einem geräumigen Gartenhaus ist ein echtes Highlight für Autoliebhaber, Handwerker und Gartenfreunde.

Beim Betreten des Hauses gelangen Sie in den weitläufigen, hellen Wohnbereich, der über einen direkten Zugang zum Wintergarten und dem Garten verfügt. Auf der gegenüberliegenden Seite finden Sie die moderne Küche, die 2017 mit einer eleganten Einbauküche ausgestattet wurde. Direkt daneben liegt eine praktische Speisekammer, die ausreichend Stauraum für Lebensmittel bietet.

Vom Flur aus erreichen Sie das erste Badezimmer des Hauses, welches mit einer Dusche ausgestattet ist. Direkt daneben befindet sich das Gäste-WC. Ein weiterer Raum, der sich zwischen der Speisekammer und dem Gäste-WC befindet, dient als Wäscheraum und bietet Zugang zur großzügigen Garage.

Im Dachgeschoss erwartet Sie ein großes, lichtdurchflutetes Schlafzimmer sowie ein Gästezimmer. Außerdem finden Sie hier den Heizungsraum, einen Abstellraum und das zweite Badezimmer, das mit einer Whirlpooleckwanne und einer Dusche ausgestattet ist.

Die Garage bietet Platz für ein Auto und eine große Werkbank und ist im Spitzdach mit einem Partyraum inklusive Tresen sowie einer eigenen Toilette ausgestattet. Das angrenzende Carport bietet Platz für zwei weitere PKWs und bietet zudem die Möglichkeit, das Garagentor zu entfernen, um ein Wohnmobil oder einen Wohnwagen unterzustellen. Der Schuppen im Garten bietet zusätzlich Platz für die Unterstellung eines PKWs.

Das Grundstück liegt am Rande einer Siedlung und bietet einen fantastischen Ausblick auf die umliegenden Felder.

Lagebeschreibung:

Das Haus befindet sich in einer ruhigen und zugleich gut angebundenen Wohngegend im idyllischen Ort Berumbur, einer Gemeinde in der Samtgemeinde Hage, im Landkreis Aurich, Ostfriesland. Die Umgebung zeichnet sich durch eine attraktive Mischung aus naturnaher Lage und guter Infrastruktur aus. Die idyllische Landschaft mit weitläufigen Feldern und Wäldern bietet eine hohe Lebensqualität und lädt zu entspannenden Spaziergängen und Freizeitaktivitäten im Freien ein.

Die örtlichen Schulen und Kindergärten sind schnell und bequem zu erreichen, was den Standort besonders für Familien mit Kindern attraktiv macht. Auch Ärzte und medizinische Einrichtungen befinden sich in unmittelbarer Nähe, sodass eine gute gesundheitliche Versorgung gewährleistet ist. Der Ort bietet zudem eine gute Anbindung an das überregionale Straßennetz, wodurch die Städte Aurich und Emden sowie weitere größere Orte in der Region problemlos erreicht werden können.

Für das tägliche Leben stehen in der Nähe Supermärkte, Einzelhandelsgeschäfte und weitere Dienstleistungen zur Verfügung, die den Komfort und die Lebensqualität der Bewohner erhöhen. Die ruhige, aber dennoch zentrale Lage sorgt für eine angenehme Mischung aus ländlichem Charme und städtischer Erreichbarkeit.

Ausstattung:

Energieausweis:

  • A+
  • A
  • B
  • C
  • D
  • E
  • F
  • G
  • H
0
30
50
75
100
130
160
200
250
>250
Baujahr:
2000
Endenergiebedarf:
105,4 kWh/(m²a)
Energieausweis:
Bedarfsausweis
Energieeffizienzklasse:
D
Energieausweis gültig bis:
04.02.2035
wesentlicher Energieträger:
Gas
Baujahr lt. Energieausweis:
2000

Ausstattungsbeschreibung:

Innenbereich:

- Moderne Einbauküche mit hochwertigen Geräten 2017
- Gäste WC im EG
- Gäste-WC Partyraum über der Garage
- Duschbad im EG
- Tageslichtbad mit Dusche und Whirlpoolwanne im DG
- Fußbodenerwärmung im EG
- Fußbodenerwärmung im Badezimmer im DG
- 4 Zimmer nebst Speisekammer, Wäscheraum, Abstellraum und Heizungsraum

Außenbereich:

- Garage: Perfekt für Ihr Fahrzeug mit zusätzlichem Stauraum und Werkbank
- Geschlossenes Carport mit Hebebühne: Ideal für Schrauber und Autoliebhaber
- Großes Gartenhaus: Viel Platz für Gartengeräte, Hobbywerkstatt oder Stauraum (es passt ein PKW hinein)
- Sommergarten: Perfekt für gemütliche Stunden

Sonstige Angaben:

Gerne vermitteln wir Ihnen über unseren unabhängigen Finanzdienstleister ein günstiges und auf Sie individuell angepasstes Finanzierungsangebot.

Unsere Spezialisten für alle Bereiche rund ums Haus stehen Ihnen gerne zur Verfügung. Ob Handwerksfirmen, Raumausstatter oder Versicherer - wir lassen Sie auch nach dem Kauf nicht allein und bieten Ihnen unseren kostenlosen "After-Sales-Service" an.

Sie interessieren sich für einen Erwerb als Kapitalanlage? Auch hier stellen wir Ihnen unseren Vermietungsservice zur Verfügung und übernehmen außerdem gerne für Sie die Verwaltung Ihrer neuen Immobilie.

Unser RE/MAX Servicepartner kümmert sich auf Wunsch auch um Haus- und Gartenpflege, ganz gleich ob saisonbedingt oder ganzjährig. Dies umfasst nach Absprache alle anfallenden Dienstleistungen, wie etwa Objektreinigung, Gartengestaltung, Winterdienst und Ferienvermietungsservice.

Mit dem Exposé erhalten Sie Grundrisse, sowie einen Link zu einem 360° Rundgang in 3D. So können Sie die Immobilie virtuell betreten und sich weitere Eindrücke vor der richtigen Besichtigung einholen.

Gerade zu Coronazeiten bekommen wir hier positive Rückmeldungen, da sich einige Fragen hierbei schon im Vorfeld klären lassen.

Für weitere Informationen steht Ihnen Herr Marcel Meyer gerne telefonisch und per E-Mail zur Verfügung.

Bitte beachten Sie auch unsere Allgemeinen Geschäftsbedingungen, sowie die Informationen zum gesetzlichen Widerruf. Beides finden Sie auch unter www.remax-krummhoern.de

Mit Leidenschaft für unsere Heimat!
Marcel Meyer
Marcel Meyer
RE/MAX Kummhörn in Ostfriesland
04923 9275-408
Jeder Lizenznehmer ist ein rechtlich eigenständiges Unternehmen und handelt auf eigene Rechnung und Verantwortung.