Ein Platz zum Leben – Baugrundstück in Loquard, Krummhörn mit Deichblick
Beschreibung:
Inmitten der weiten Landschaft Ostfrieslands, im idyllischen Warfendorf Loquard, wartet ein ganz besonderes Stück Erde auf seine neue Geschichte: ein Baugrundstück, das Raum für Ihre Ideen, Ihre Pläne – und Ihr Zuhause bietet.Das ruhig gelegene Baugrundstück befindet sich im Neubaugebiet und bietet mit seiner großzügigen Fläche von 537 m² beste Voraussetzungen für den Bau eines Einfamilienhauses. Ob moderner Neubau oder traditioneller Stil – hier lässt sich vieles verwirklichen. Das Grundstück ist voll erschlossen und sofort bebaubar. Die Umgebung ist geprägt von gepflegten Wohnhäusern, viel Grün und einem offenen Horizont.
Durch die angenehme Grundstücksform und Ausrichtung profitieren zukünftige Bewohner von ganztägiger Helligkeit und der Möglichkeit, einen schönen Garten anzulegen – vielleicht mit Blick auf die typischen ostfriesischen Weiten.
Lagebeschreibung:
Loquard ist Teil der Gemeinde Krummhörn und zählt zu den ältesten Dörfern der Region. Es liegt nur wenige Minuten von Greetsiel entfernt – einem der bekanntesten Fischerorte an der Nordseeküste. Wer hier lebt, genießt die Nähe zum Meer, zu den Deichen, zu Radwegen durch Felder und Dörfer – und zu Menschen, die gern hier sind. In Pewsum (ca. 5 Autominuten entfernt) finden sich alle Dinge des täglichen Bedarfs, von Supermarkt bis Schule.Ausstattung:
Energieausweis:
- Energieausweis:
- es besteht keine Pflicht!
Ausstattungsbeschreibung:
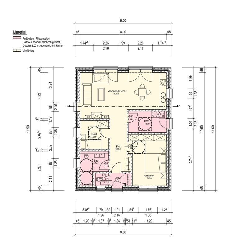
Auf wünschen können wir Sie auch bei der Suche nach einem Bauunternehmen und sonstigen Dienstleistern behilflich sein.Wir haben ein Angebot über einen 3 Z/K/B Bungalow mit einer Größe von ca. 80 m² Wohnfläche vorliegen. (Siehe Grundriss)
Sonstige Angaben:
Gerne vermitteln wir Ihnen über unseren unabhängigen Finanzdienstleister ein günstiges und auf Sie individuell angepasstes Finanzierungsangebot.Unsere Spezialisten für alle Bereiche rund ums Haus stehen Ihnen gerne zur Verfügung. Ob Handwerksfirmen, Raumausstatter oder Versicherer - wir lassen Sie auch nach dem Kauf nicht allein und bieten Ihnen unseren kostenlosen "After-Sales-Service" an.
Sie interessieren sich für einen Erwerb als Kapitalanlage? Auch hier stellen wir Ihnen unseren Vermietungsservice zur Verfügung und übernehmen außerdem gerne für Sie die Verwaltung Ihrer neuen Immobilie.
Unser RE/MAX Servicepartner kümmert sich auf Wunsch auch um Haus- und Gartenpflege, ganz gleich ob saisonbedingt oder ganzjährig. Dies umfasst nach Absprache alle anfallenden Dienstleistungen, wie etwa Objektreinigung, Gartengestaltung, Winterdienst und Ferienvermietungsservice.
Mit dem Exposé erhalten Sie Grundrisse, sowie einen Link zu einem 360° Rundgang in 3D. So können Sie die Immobilie virtuell betreten und sich weitere Eindrücke vor der richtigen Besichtigung einholen.
Gerade zu Coronazeiten bekommen wir hier positive Rückmeldungen, da sich einige Fragen hierbei schon im Vorfeld klären lassen.
Für weitere Informationen steht Ihnen Herr Christian Herlyn gerne telefonisch und per E-Mail zur Verfügung.
Bitte beachten Sie auch unsere Allgemeinen Geschäftsbedingungen, sowie die Informationen zum gesetzlichen Widerruf. Beides finden Sie auch unter www.remax-krummhoern.de
Mit Leidenschaft für unsere Heimat!
Sie wollen mehr erfahren?
Wenn Sie uns eine Nachricht über das Kontaktformular senden, melden wir uns schnellstmöglich bei Ihnen:












